MC-Glass

Stolarka PCV

Stolarka ALU

Stolarka drewniana

Bramy i rolety

Systemy PPOŻ

Program Czyste Powietrze

MC-Glass

CHARAKTERYSTYKA SYSTEMU 
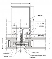
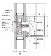
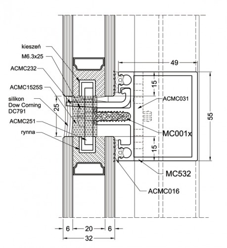
Odmiana ściany osłonowej bez widocznych zewnętrznych elementów aluminiowych. Od zewnątrz widoczne są jedynie wypełnienia szklane oddzielone od siebie szczelinami silikonu konstrukcyjnego. W pakietach szklanych wyprofilowane są specjalne kieszenie i rynny, w które trafiają płytki montażowe za pomocą których wypełnienia mocowane są do szkieletu ściany osłonowej.